梯子游戏官方网址·(中国)
EN
首页
/
关于
企业文化
资质荣誉
品牌诠释
宣传视频
领导致辞
领导关怀
/
资讯
公司新闻
行业动态
/
产品
塔式起重机
施工升降机
混凝土搅拌站
混凝土输送泵
混凝土臂架泵车
混凝土搅拌运输车
沥青搅拌站
稳定土厂拌设备
/
优势
/
案例
/
往来
/
服务
/
留言
/
联系
EN
首页
关于
企业文化
资质荣誉
品牌诠释
宣传视频
领导致辞
领导关怀
资讯
公司新闻
行业动态
产品
塔式起重机
QTZ系列(塔帽)
HT系列(塔帽)
QTP系列(平头)
HP系列(平头)
HPA系列(平头)
QTD系列(动臂)
FT系列(动臂)
SF系列(动臂)
施工升降机
混凝土搅拌站
HZS系列混凝土搅拌站
HZS系列简易组合混凝土搅拌站
YHZS系列移动式混凝土搅拌站
混凝土输送泵
混凝土臂架泵车
混凝土搅拌运输车
沥青搅拌站
稳定土厂拌设备
优势
案例
往来
服务
留言
联系
塔式起重机
QTZ系列(塔帽)
HT系列(塔帽)
QTP系列(平头)
HP系列(平头)
HPA系列(平头)
QTD系列(动臂)
FT系列(动臂)
SF系列(动臂)
/
施工升降机
/
混凝土搅拌站
HZS系列混凝土搅拌站
HZS系列简易组合混凝土搅拌站
YHZS系列移动式混凝土搅拌站
/
混凝土输送泵
/
混凝土臂架泵车
/
混凝土搅拌运输车
/
沥青搅拌站
/
稳定土厂拌设备
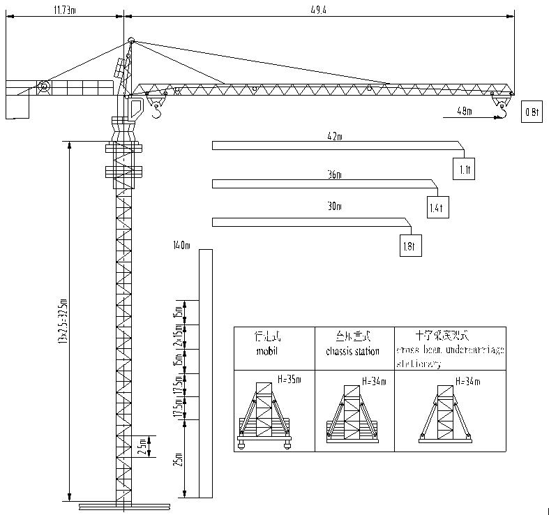
QTZ50A (4808)塔式起重机
¥0.00
上一:
QTZ80A(5613-8)塔式起重机
下一:
QTZ100 (6012-8)塔式起重机
描述
推荐
HTB80(6010)塔式起重机
鸿达塔吊HTB80(6010)塔机特点 鸿达集团在原有的QTZ80C(5810)塔机基础上...
¥
0.00
HPA80(6010)平头塔式起重机
鸿达塔吊HPA80(6010)平头塔机特点 1、起重臂采用高强钢(无缝管BQ490E);采用大...
¥
0.00
HPA100(6013)平头塔式起重机
鸿达塔吊HPA100(6013)平头塔机特点 鸿达HPA1...
¥
0.00
HPB100 (6013)平头塔式起重机
铁力士牌HPB100(6013)塔机是鸿达重工机械制造有限公司推出的一种上回转、水平臂自升塔...
¥
0.00
SC系列施工升降机
施工升降机广泛应用于工业与民用建筑、,桥梁施工、井下施工〓、大型烟囱施工及船泊工业等场地〓,适用垂直运输物料及人员,作为永久性或半永久性的电梯〓,可用于 仓库〓、高塔等不同场合 具有性能稳定〓、安全可靠、搬运灵活〓、适应性强等特点〓,提高工效、降低施工人员的劳动强度〓。
¥
0.00
关于我们
扫一扫,关注我们最新消息
联系我们
13905357923
工作时间:周一至周五 9:00-18:00
联系人:王先生
手机:13905357923
邮件:13905357923@163.com
地址:山东省莱阳市龙门东路26号
底部导航
关于
资讯
产品
案例
联系
山东鸿达建工集团有限公司创建于1983年,是一个集建筑工程机械制造业、食品加工业、建筑房地产业、餐饮服务业、聚氨酯新型保温材料等为一体的多元化大型企业集团,下辖16个子公司,占地面积96万平方米,建筑面积68万平方米。
山东鸿达建工集团有限公司
版权所有
技术支持:
海纳CMS
首页
拨号
产品
联系